เดโชเศรษฐ์ คอนสตรั๊คชั่น รับงานก่อสร้างทุกประเภท รับสร้างอาคารทุกประเภท อาคารสำเร็จรูป งานโยธา งานตกแต่งภายใน ด้วยทีมช่างผู้เชี่ยวชาญด้านโครงสร้างอาคารเราจึงให้บริการรับก่อสร้างอาคารอย่างครบวงจร ตั้งแต่ออกแบบ ผลิต ไปจนถึงติดตั้ง ด้วยมาตรฐานที่คุณวางใจได้ ไม่ว่าคุณจะต้องการขยายธุรกิจ สร้างโรงงาน หรือโกดังเก็บสินค้า เราพร้อมเป็นตัวช่วยให้คุณได้อาคารที่ตอบโจทย์การใช้งานมากที่สุด
หน้าแรก
เกี่ยวกับเรา
สินค้าของเรา
บริการของเรา
ผลงาน
บทความ
ติดต่อเรา
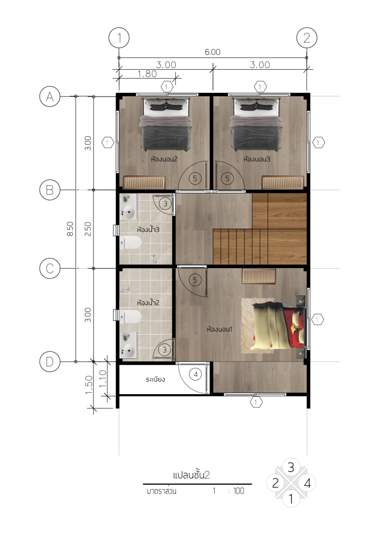
แบบทาวน์โฮม TH-24 (2 ชั้น)
ดูทั้งหมด
ติดต่อเราได้ที่นี
X